SeccoMix 461

SeccoMix 461
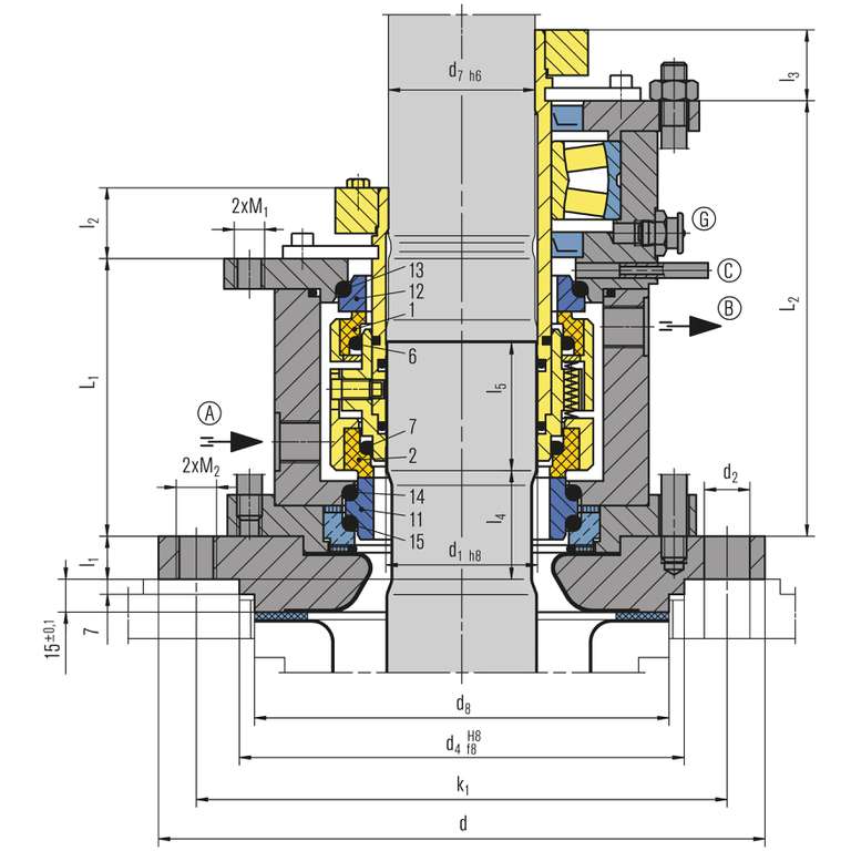
ItemDescription
1Seal face, atmosphere side
2Seal face, product side
6, 7, 13, 14, 15O-Ring
11Seat, product side
12Seat, atmosphere side
Flange connection acc. to DIN 28137 T2.

SeccoMix 461

Features

  • For top entry drives
  • For glass-lined vessels acc. to DIN resp. Non-DIN
  • Dry running
  • Nitrogen pressurized dual seal
  • Balanced
  • Multiple springs rotating
  • Independent of direction of rotation

Advantages

  • Ready-to-fit and factory-tested unit
  • With or without bearing available
  • Suitable for pressure reversal e.g. in case of barrier pressure failure
  • No contamination of the product by barrier fluid
  • Friction-locked connection to the shaft
  • Connections to DIN 28138 standards or as required (SeccoMix 491)
  • ATEX certification available on request
  • The seal can be lifted off the glass-lined flange as a complete cartridge. The sensitive glass-lined basic flange remains mounted on the vessel.

Operating range

Shaft diameter:
d1 = 40 ... 160 mm (1.57" ... 6.3")
Pressure: p1 = vacuum ... 6 bar (87 PSI)
Temperature: t1 = -20 °C ... +200 (250*) °C
(-4 °F ... +392 (482*)) °F
Sliding velocity: vg = 0 ... 2 m/s (0 ... 6 ft/s)

For applications beyond this range, please inquire.

* with cooling flange

! It should be noted that the extremal values of each operating parameter cannot be applied at the same time because of their interaction.

Materials

Seal face: Carbon graphite, FDA conform
Seat: Silicon carbide, FDA conform
Secondary seals and metal parts according to application and customer's specifications.

Standards and approvals

  • FDA
  • ATEX
  • DIN 28138 (mechanical seals for agitator shafts)
  • DIN 28136 T3 (for glass-lined vessels)
  • DIN 28137 T2 (flange connection for glass-lined vessels)
  • DIN 28159 (shaft end for glass-lined vessels)
  • TA-Luft-konform

Notes

Options:
  • Cooling or heating flange

Recommended piping plans

Gas supply
EagleBurgmann GSS4015/A400-D0
for double seals SeccoMix 461...D..



Product variants

SeccoMix 461-D
Dual seal

SeccoMix 461L-D
Dual seal with integrated floating bearing.

SeccoMix 491
Seal designation for adaptions beyond DIN (e.g. unstepped shaft).

Similar products

AD510 / AD520

  • Dry running
  • Single seal
  • Independent of direction of rotation

SeccoLip461

  • For top entry drives, on request for side and bottom entry drives
  • For glass-lined vessels
  • Dry-running
  • Modular and flexible design
  • Compensation of shaft deflection by patented technology
  • Independent of direction of rotation
  • Cartridge unit

SeccoLip481

  • For top entry drive;
    side drive also available on request
  • For stainless steel vessels
  • Dry-running
  • Modular and flexible design
  • Compensation of shaft deflection by patented technology
  • Independent of direction of rotation
  • Cartridge unit
  • Variant available for applications with product contact (SeccoLipR)
Contact

Inquire about individual solutions

We develop and produce customer-specific special and individual solutions for every application.

Inquire now Discover reference projects
Back to the overview