SeccoMix 481
Installation, details, options

For a larger view, please mouseover the image.
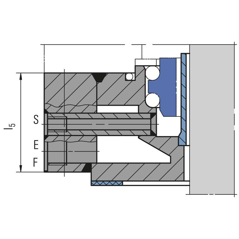
Supply connections
Designation and position acc. to DIN 28138 T3.
A Barrier gas IN
B Barrier gas OUT
C Drainage
E Cooling IN
F Cooling OUT
G Grease
S Flush
T Temperature metering
For reasons of standardization, the supply connections of single seals are matched to those of the double seals.
For a larger view, please mouseover the image.
Cooling flange
Can be used alternatively as a heating flange.
For a larger view, please mouseover the image.
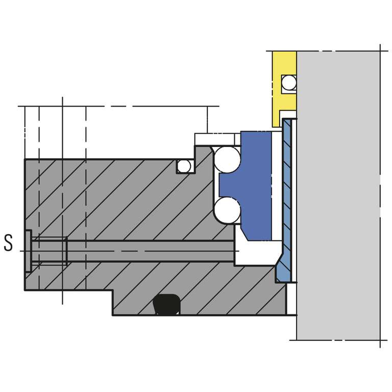
Wear trap
with flush and cooling / heating flange.
For a larger view, please mouseover the image.
Wear trap
with flush.
For a larger view, please mouseover the image.
Polymerization barrier
Can be used alternatively as wear trap with flush.